If you’re looking for a spacious home that is full of style, we’ve got some amazing house plans for you to consider. These beautiful homes all measure in at 3000 square feet, providing ample space for families and entertainers alike. We’ve compiled a collection of stunning images and informative descriptions to help you discover the home of your dreams. Let’s jump right in!
Table of Contents
Classical Style House Plan

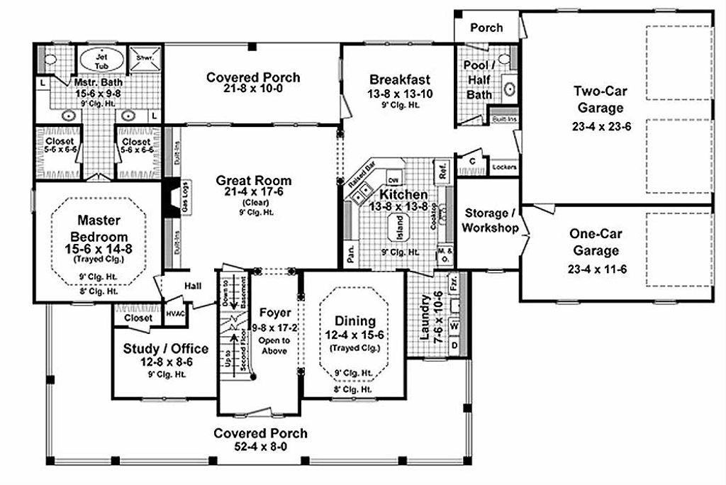
This classical style house plan is the epitome of grandeur. With four bedrooms and three and a half baths, this spacious home is perfect for a large family or someone who frequently entertains guests. The 3000 square foot layout provides ample room for comfortable living without feeling cramped or cluttered. The exterior of the home has a classic look with its symmetry and high pitched roof, giving the home a stately appearance. The inside of the home is just as impressive, with a spacious great room, master suite, and large kitchen. With charming details like arches and columns, this is a home that is sure to impress.
Country Style House Plan

For those who prefer a more casual, laid-back style of living, this country style house plan is the perfect choice. This plan features a wraparound porch and a traditional design that is warm and welcoming. This home has plenty of space for families with four bedrooms and three and a half baths. The 3000 square foot layout makes this home large enough for comfortable living without sacrificing the cozy, inviting atmosphere of a country home. With classic details like a fireplace and large windows, this home is sure to become a favorite gathering spot for friends and family alike.
Unique House Plan

If you want a home that stands out from the rest, this unique house plan is sure to catch your eye. With its unconventional design, this 3000 square foot home features five bedrooms and three and a half baths. Perfect for someone who craves a bit of excitement in their life, this home has a distinctly modern vibe that is sure to make a statement in any neighborhood. The inside of the home is equally impressive, with an open floor plan and plenty of natural light. The unique design of this home will make it a conversation starter for years to come.
European Style House Plan

If you love the old-world charm of European architecture, then this European style house plan is sure to win your heart. This 3000 square foot plan has three bedrooms and three and a half baths, making it perfect for someone who wants a spacious home without excess bedrooms. The interior of the home is full of character with high ceilings and arched doorways. The large kitchen is perfect for those who enjoy cooking and entertaining, and the master suite is a luxurious oasis. With a stunning exterior featuring brickwork and a turret, this European-style home is sure to be a showstopper in any neighborhood.
Modern House Plan

If you’re looking for a home that is sleek and modern, this 3000 square foot house plan is a must-see. With a minimalist design and clean lines, this home is perfect for someone who craves simplicity and a clutter-free environment. The open floor plan provides plenty of space for comfortable living, and the three bedrooms and three and a half baths ensure that everyone in the family has plenty of privacy. With a stunning exterior featuring large windows and a flat roof, this modern home is sure to turn heads.
Custom Home Floor Plan

If you want the ultimate in flexibility and customization, a custom home floor plan may be your best option. This 3000 square foot plan features four bedrooms and three and a half baths, but the real beauty of a custom home is that you can modify the plan to fit your specific needs. If you need an extra bedroom or want to expand the living space, a custom home allows you to do just that. With a custom home, you can truly have the home of your dreams.
Conclusion
No matter what your personal style or needs are, there is a 3000 square foot house plan that is perfect for you. Whether you prefer a classic, country, modern, or European style, there is a plan that will meet your needs. With customization options and unique details, these homes are sure to provide comfortable living spaces that you’ll love for years to come. Take a closer look at these amazing plans and start planning your dream home today!
If you are looking for Custom Home Floor plans – 3000 sq ft — Providential Custom Homes you’ve came to the right place. We have 8 Images about Custom Home Floor plans – 3000 sq ft — Providential Custom Homes like Custom Home Floor plans – 3000 sq ft — Providential Custom Homes, Classical Style House Plan – 4 Beds 3.5 Baths 3000 Sq/Ft Plan #477-7 and also Custom Home Floor plans – 3000 sq ft — Providential Custom Homes. Here it is:
Custom Home Floor Plans – 3000 Sq Ft — Providential Custom Homes

breathlesshomes.com
sq providential
Elegant 3000 Sq Ft Modern House Plans – New Home Plans Design

www.aznewhomes4u.com
sq blueprints 2525 houseplans
Country Style House Plan – 4 Beds 3.5 Baths 3000 Sq/Ft Plan #21-323

www.houseplans.com
beds houseplans
Classical Style House Plan – 4 Beds 3.5 Baths 3000 Sq/Ft Plan #477-7

www.houseplans.com
houseplansservices houseplans
Custom Home Floor Plans – 3000 Sq Ft — Providential Custom Homes

breathlesshomes.com
providential
1000+ Images About Floor Plans On Pinterest | Floor Plans, House Plans

www.pinterest.com
mediterranean houseplans courtyard theres preferidos plano baths garages katabara vendido
European Style House Plan – 3 Beds 3.5 Baths 3000 Sq/Ft Plan #63-122

www.houseplans.com
5 Unique 3000 Sq Ft House Plans | Cabin Floor Plans, House Plans

www.pinterest.com
sq
5 unique 3000 sq ft house plans. Sq blueprints 2525 houseplans. European style house plan