Skip to content

Floor Plans 3000 Sq Ft 3000 Plans Sq House Ft Floor Story Designs Drawing Homes Blueprints Luxury Two Bath Arts Crafts Square Plan Youngarchitectureservices Feet

If you’re in the market for a new home, you may be overwhelmed by the sheer number of options available. But fear not! We’ve compiled a list of some of the best custom home floor plans over 3000 square feet to help you make your decision.

Classical Style House Plan – 4 Beds 3.5 Baths 3000 Sq/Ft Plan #477-7

This elegant home features four spacious bedrooms and three and a half bathrooms, making it perfect for larger families or those who like to entertain. The classical style gives it a timeless charm, while the modern amenities ensure that it’s up to date with the latest technology and trends.

See also  Cheap Cost To Build House Plans Affordable Home Plans: Affordable Home Plan Ch63

Classical Style House Plan

The main floor is home to the living room, dining room, kitchen, and master suite, while upstairs you’ll find the additional bedrooms and bathrooms. And with over 3000 square feet of living space, there’s plenty of room for everyone to spread out and relax.

Custom Home Floor plans – 3000 sq ft — Providential Custom Homes

If you’re looking for a custom home, then Providential Custom Homes has you covered. Their 3000 square foot floor plans offer a range of styles and layouts to fit your unique needs and preferences. From modern to traditional, you’ll find something that suits your taste.

Custom Home Floor Plan

These homes feature high-end amenities and finishes, from gourmet kitchens to luxurious master suites. And with Providential’s commitment to quality craftsmanship and attention to detail, you can be sure that your new home will be a true masterpiece.

Floor Plans Over 3000 sq ft — Legacy Homes

Legacy Homes specializes in building custom homes that are both functional and beautiful. Their floor plans over 3000 square feet offer plenty of space for families of all sizes, with options for up to six bedrooms and five and a half bathrooms.

Legacy Homes Floor Plan

These homes feature open living areas, gourmet kitchens, and luxurious master suites. And with Legacy Homes’ commitment to using only the finest materials and craftsmanship, you can be sure that your new home will exceed all expectations.

See also  Architectural House Plans Australia Sloping Downward Architectural

Custom Home Floor plans – 3000 sq ft — Providential Custom Homes

Providential Custom Homes makes another appearance on our list, and for good reason. Their 3000 square foot custom home floor plans are some of the best in the business, with options for every style and budget.

Custom Home Floor Plan

Whether you’re looking for a traditional or modern design, Providential has something to offer. From soaring ceilings to cozy fireplaces, these homes are designed with comfort and luxury in mind.

Elegant 3000 Sq Ft Modern House Plans – New Home Plans Design

If you prefer a more modern style, then you’ll love these elegant 3000 square foot modern house plans. With sleek lines, minimalist design, and plenty of natural light, these homes are sure to impress.

Modern House Plan

These homes feature open floor plans, gourmet kitchens, and luxurious master suites. And with the latest technology and energy-efficient features, you can be sure that your new home will be both stylish and practical.

Floor Plans for 3000 Sq Ft Homes Luxury House Drawing 2 Story 3000 Sq

If you’re in search of a true luxury home, then look no further than these floor plans for 3000 square foot homes. With up to six bedrooms and six bathrooms, these homes are designed for the ultimate in comfort and relaxation.

Luxury Home Floor Plan

From state-of-the-art media rooms to gourmet kitchens, these homes have it all. And with thoughtful design and attention to detail, you can be sure that your new home will be everything you’ve ever wanted.

See also  One Level Home Floor Plans Plan 790052glv: Exclusive One-level Craftsman House Plan

5 Unique 3000 Sq Ft House Plans | Cabin floor plans, House plans

Finally, for those who want something truly different, here are five unique 3000 square foot house plans that are sure to inspire.

Unique House Plans

From a modern cabin to a sprawling ranch, these homes showcase the best in innovative design and creative planning. And with ample space for all your needs, you’ll have plenty of room to make them your own.

Whether you’re looking for a traditional or modern home, a luxury estate or a unique cabin, there’s a 3000 square foot floor plan that’s perfect for you. With so many options to choose from, you’re sure to find a home that meets all your needs and exceeds your expectations. So why wait? Start exploring today and find your dream home!

If you are searching about Custom Home Floor plans – 3000 sq ft — Providential Custom Homes you’ve visit to the right page. We have 8 Pics about Custom Home Floor plans – 3000 sq ft — Providential Custom Homes like Custom Home Floor plans – 3000 sq ft — Providential Custom Homes, Elegant 3000 Sq Ft Modern House Plans – New Home Plans Design and also Classical Style House Plan – 4 Beds 3.5 Baths 3000 Sq/Ft Plan #477-7. Here you go:

Custom Home Floor Plans – 3000 Sq Ft — Providential Custom Homes

Custom Home Floor plans - 3000 sq ft — Providential Custom Homes

breathlesshomes.com

providential

Floor Plans For 3000 Sq Ft Homes Luxury House Drawing 2 Story 3000 Sq

Floor Plans for 3000 Sq Ft Homes Luxury House Drawing 2 Story 3000 Sq

www.aznewhomes4u.com

3000 plans sq house ft floor story designs drawing homes blueprints luxury two bath arts crafts square plan youngarchitectureservices feet

Floor Plans Over 3000 Sq Ft « Legacy Homes

Floor Plans Over 3000 sq ft « Legacy Homes

sequimbuilder.com

plans floor ft sq over

Custom Home Floor Plans – 3000 Sq Ft — Providential Custom Homes

Custom Home Floor plans - 3000 sq ft — Providential Custom Homes

breathlesshomes.com

sq providential

5 Unique 3000 Sq Ft House Plans | Cabin Floor Plans, House Plans

5 Unique 3000 Sq Ft House Plans | Cabin floor plans, House plans

www.pinterest.com

Classical Style House Plan – 4 Beds 3.5 Baths 3000 Sq/Ft Plan #477-7

Classical Style House Plan - 4 Beds 3.5 Baths 3000 Sq/Ft Plan #477-7

www.houseplans.com

houseplansservices houseplans

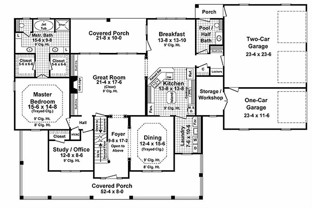
Country Style House Plan – 4 Beds 3.5 Baths 3000 Sq/Ft Plan #21-323

Country Style House Plan - 4 Beds 3.5 Baths 3000 Sq/Ft Plan #21-323

www.houseplans.com

baths garage houseplans

Elegant 3000 Sq Ft Modern House Plans – New Home Plans Design

Elegant 3000 Sq Ft Modern House Plans - New Home Plans Design

www.aznewhomes4u.com

plans 3000 sq house ft modern plan homes ranch floor story bedroom split blueprints open single style 2500 zone designs

Elegant 3000 sq ft modern house plans. 3000 plans sq house ft floor story designs drawing homes blueprints luxury two bath arts crafts square plan youngarchitectureservices feet. Custom home floor plans